KOWERK, Dietlikon
OOS supported the owner AXA Anlagestiftung in the strategic repositioning of a property built in 1993 at Industriestrasse 24 in Dietlikon. With clever interventions on the level of architecture and interior design, the building was refurbished and adapted to the new needs.
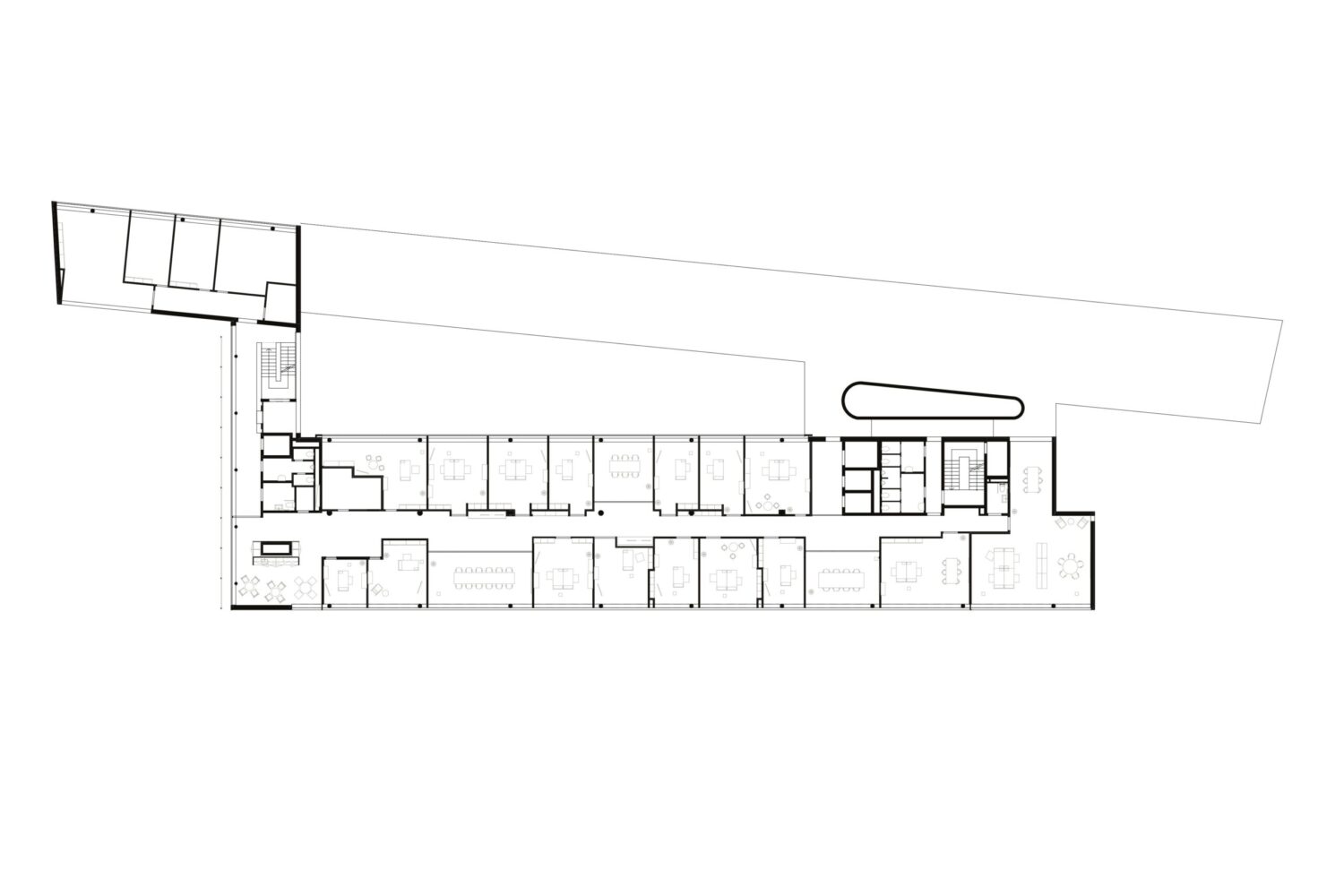
Starting from a purely private individual office structure by a main tenant, the building was redesigned through various interventions. The result is the KOWERK office and commercial building. This project is characterized by a variety of possible uses with areas for offices, trade and services. Due to the new multi-tenant structure, the vision for the property follows the idea of “easy-in/easy-out”.
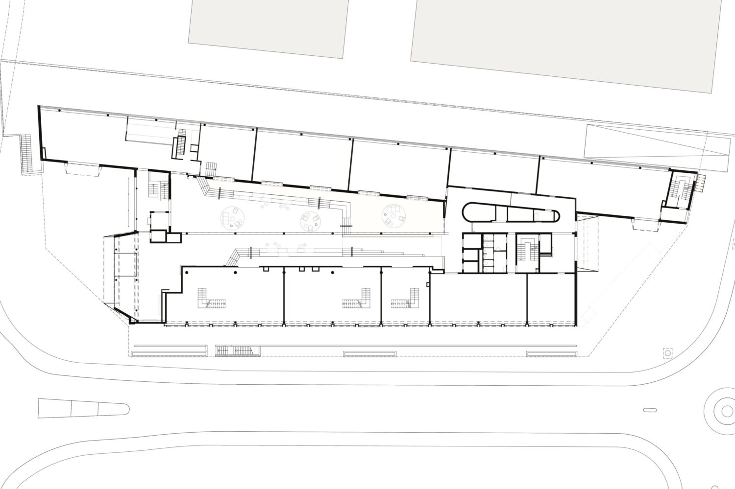
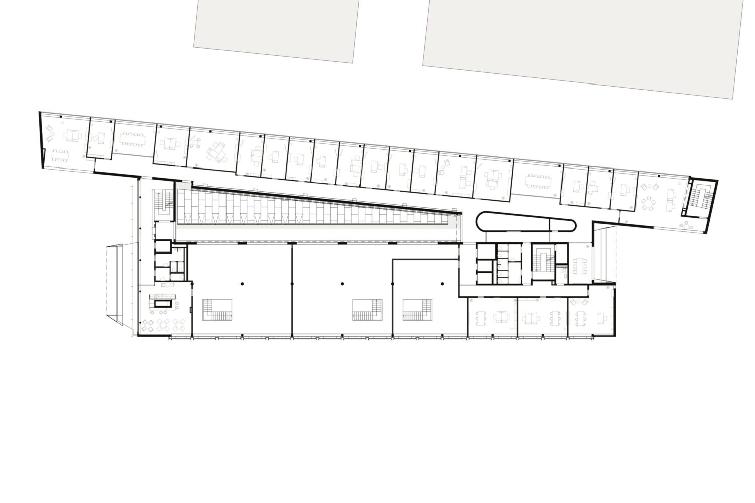
On the ground floor there are public areas for gastronomy, showrooms, retail space and two-storey manufactories, which are connected to the first floor. The heart of the building is the atrium.
Wide range of uses with multi-tenant structure
On the upper floors, the offer ranges from approx. 10 m² of small micro offices for start-ups to approx. 6’621 m² for established companies. A collab space on the 6th floor and storage rooms in the basement round off the space offer.
Due to the continuous maintenance of the building since its construction, the building fabric was basically in good condition. This had resulted in the requirement to revitalise and refurbish the existing building with as little intervention as possible. Obstacles that come to light during the conversion were responded to in an agile manner and structural decisions were adapted during the process.
Project Details
Similar Projects



