Ihr Browser ist veraltet. Bitte aktualiseren Sie auf Edge, Chrome, Firefox.

OOS Office Redesign

When your own office becomes a testing ground for innovative design concepts and working methods: OOS has given its premises a new, surprising look.

In 2008, OOS moved into the brick building at Hardstrasse 245, where the interior fit-out was carried out to immediately create an inspiring working environment and emphasise the authentic character of the building. Shortly afterwards in 2009, Club Exil was opened on the ground floor, emphasising the lively atmosphere of the location.

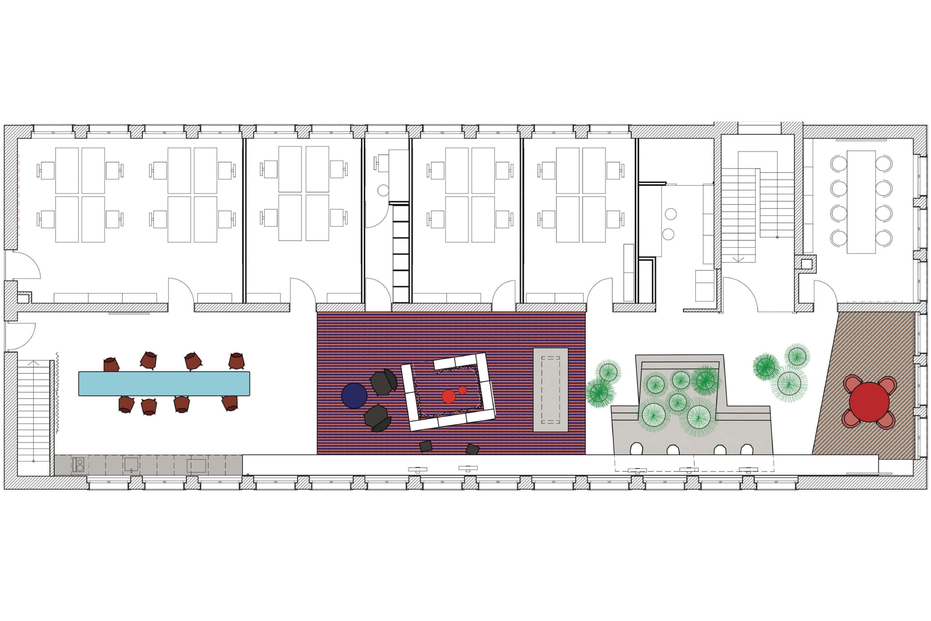
15 years later, OOS decided to redesign the upper floor to reflect new forms of collaboration. A central element of the new design was the introduction of activity-based working. This flexible workspace model offers employees zones that can be used variably depending on their activities and needs.

On the upper floor, employees and visitors are welcomed by a generous, lush green area and a multifunctional room with communication zones. As part of the redesign, this area was equipped with a kitchen for drinking coffee, cooking and eating together, open meeting zones and individual workstations. The space serves as a dynamic place for spontaneous encounters, dialogue and work.

The individual group offices, each offering space for 4 to 8 individual workstations, are accessed from this central room. The offices are functionally designed and offer employees space for concentrated work as well as for team-internal communication. The following applies to these offices: Weekly Clean Desk Policy.

In line with a sustainable reuse approach, old office desks were converted into pedestals for plants and workstations, while former shelves now function as a library with an integrated meeting zone.

Project Details

Client
OOS AG
Location
Zurich
Internal Team
Raf Dauwe, Tonja Kuhn
External Team
aplantis (indoor greening), Marcel Rickli (photography)
Year
2023
Typology
Discipline
Task
Status