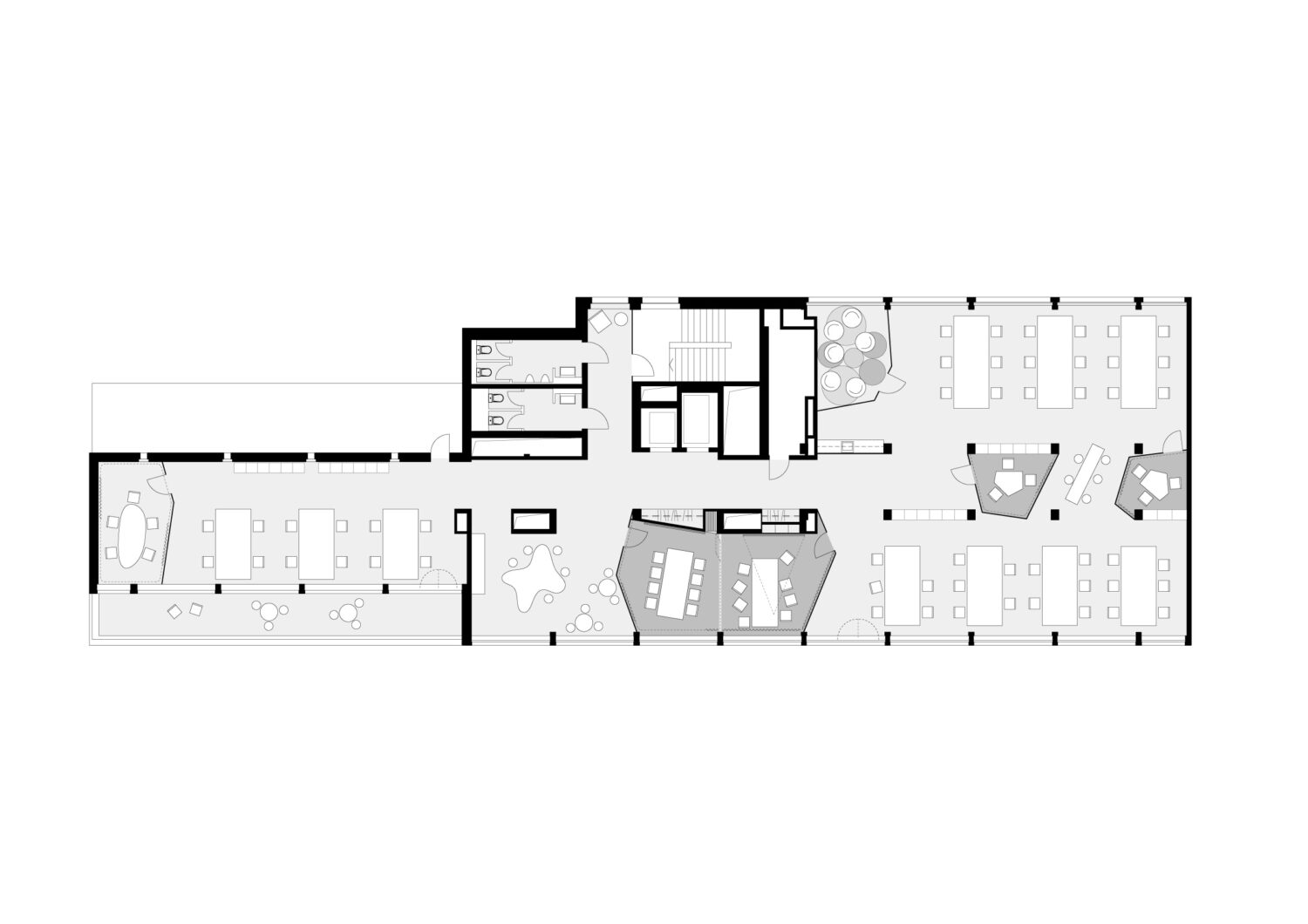
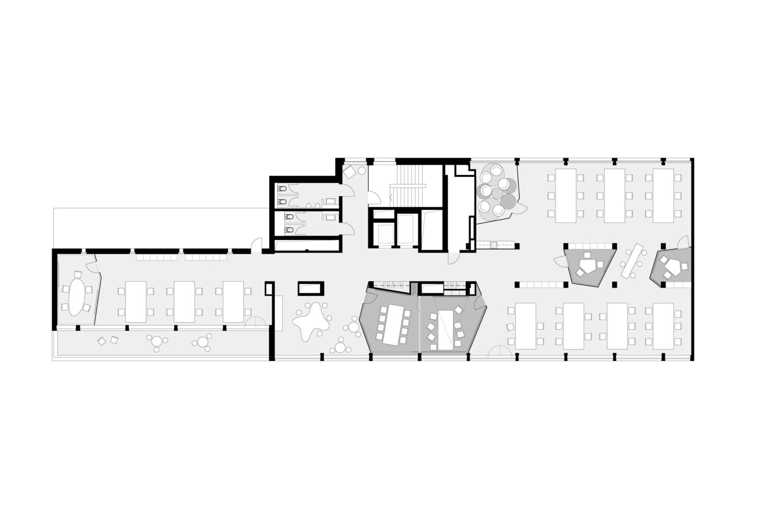
MoneyPark Headquarter, Zurich
The financial consulting firm MoneyPark AG in Zurich once again relies on the adaptable and sustainable design concept of OOS. The customer zones and the headquarters were brought together both in the locality and on the design level.
In just four months from the start of the project, the entire area was shaped and defined organisationally and atmospherically with just a few elements: A central area with meeting rooms and a café corner for meetings and stays was created in the headquarters.
Corporate values translated into space
The workplaces were designed to be very flexible and compressible with the use of benches. OOS has thus made the appearance of the headquarters “experienceable” and “perceptible” according to the design concept. Thanks to early and consistent coordination with the client, the short planning and construction time and the high coordination effort with the basic construction could also be successfully mastered.
Project Details
Similar Projects