Ihr Browser ist veraltet. Bitte aktualiseren Sie auf Edge, Chrome, Firefox.

VerticalLab am Rietpark, Schlieren

Im Rahmen eines Studienauftrags für die Geistlich Immobilia AG hat OOS eine architektonische Ikone für das wachsende Life-Science-Quartier in Schlieren entworfen. Das Projekt verbindet eine markante Formensprache, flexiblen Arbeitswelten, ein Low-Tech-Ansatz und maximale Flächenausnutzung dank eines innovativen architektonischen Konzepts.

Das historische Industrieareal entlang der SBB-Bahnlinie in Schlieren wird durch die Geistlich Immobilia AG schrittweise entwickelt und neu positioniert. Der zentral am Bahnhof Schlieren gelegene Standort im Limmattal hat sich in den letzten Jahren zu einem der führenden Life-Science-Hotspots der Schweiz entwickelt. Im Rahmen eines Studienverfahrens wurde für die nächste Etappe eine architektonische Ikone gesucht, die als Schlussstein des Quartiers dienen soll. OOS wurde gemeinsam mit neun weiteren Teams zur Teilnahme eingeladen. Der Entwurf konnte sich im weiteren Verfahren nicht durchsetzen.

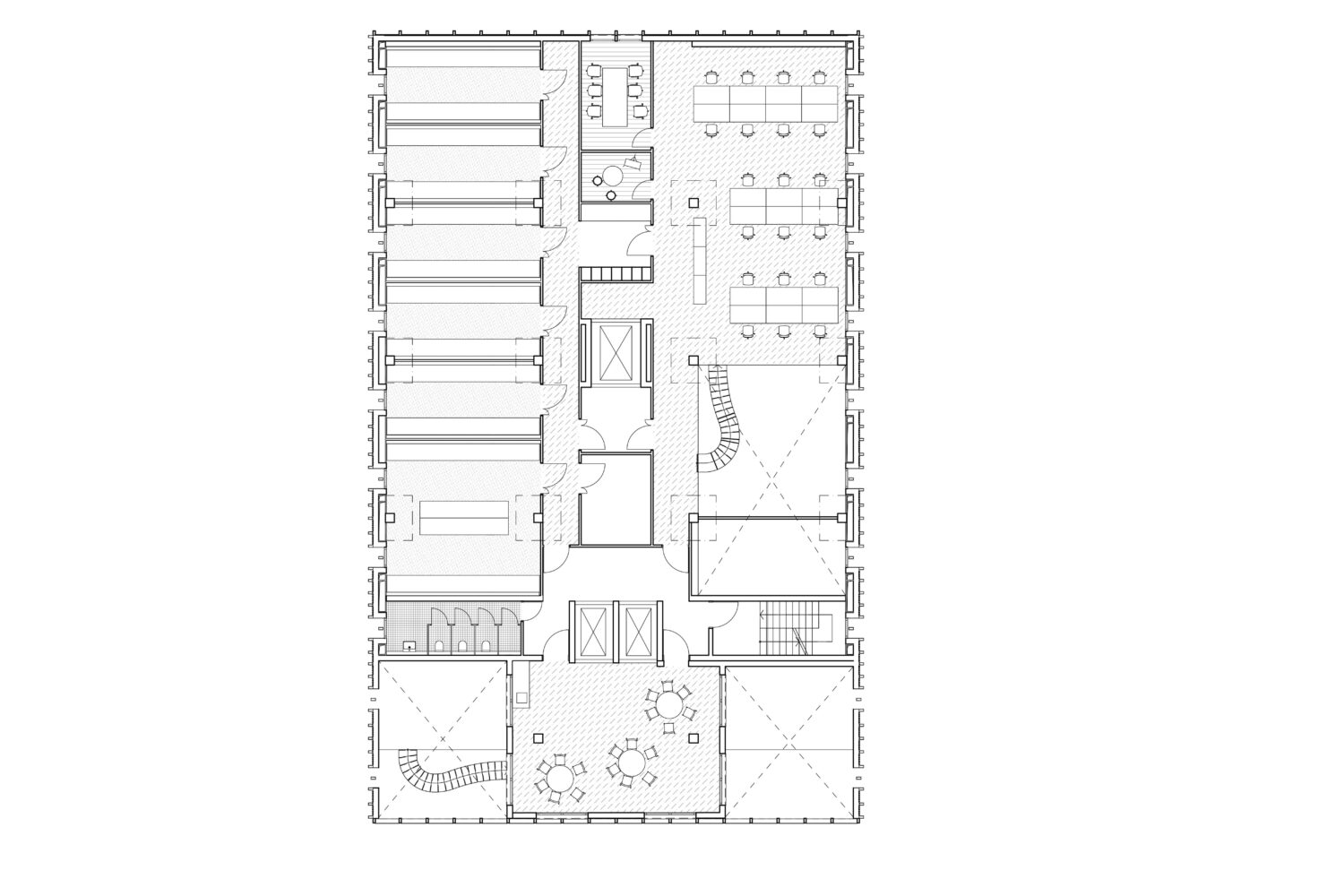
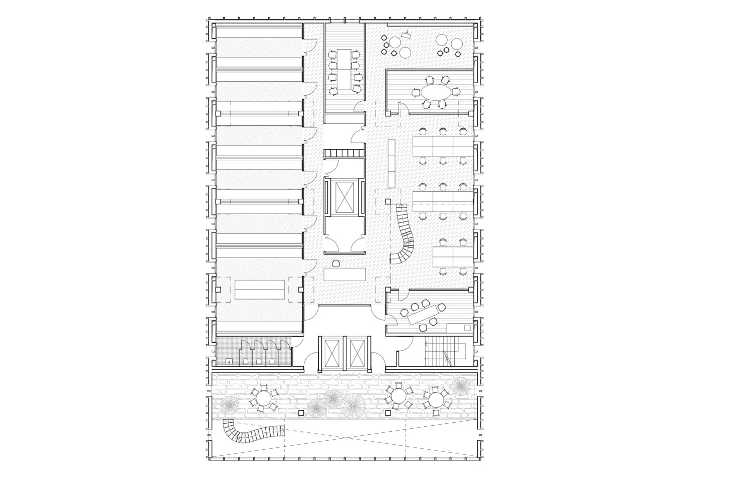
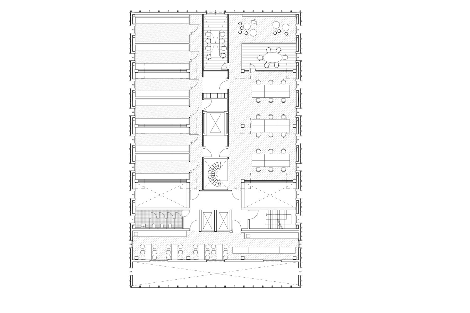
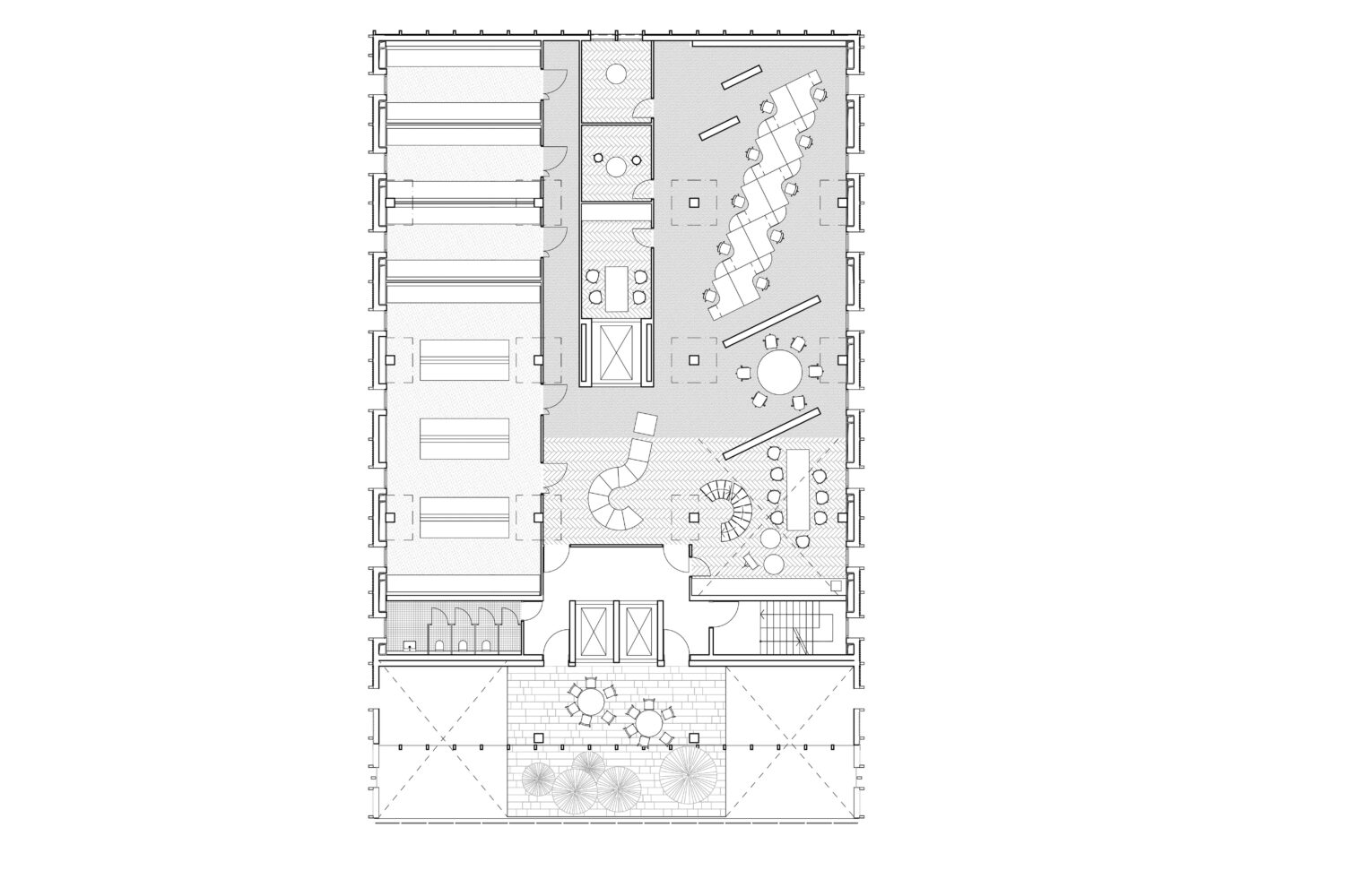
Das Projekt verfolgt das Ziel, eine einzigartige Identität für das Areal und den Standort Schlieren zu schaffen. In der Umsetzung zeigt sich dies durch einen klar strukturierte, vertikal gegliederte Baukörper. Seine silbern glänzende Fassade bildet einen bewussten Kontrast zu den mineralischen Nachbarbauten. Das Erdgeschoss wird für öffentliche Nutzungen wie Gastronomie, Logistik, Co-Working und Empfang sowie für Veloabstellplätze genutzt. Im Inneren sind individuelle und flexible Arbeitswelten vorgesehen, die den Bedürfnissen von Jungunternehmen und Start-ups gerecht werden.

Die Büro- und Laborflächen in den Obergeschossen sind als «vertikale Geschwistergeschosse» organisiert. Die Arbeitswelten heben sich deutlich von klassischen Laborneubauten ab. Grosszügige Sichtbezüge und offene Räume sorgen für Orientierung und Wohlbefinden, anpassbare Ausbauten gewährleisten maximale betriebliche Flexibilität. Die Anordnung der Raumnutzungen optimiert die Abläufe und fördert Interkationen.

Durch die Maximierung der Geschossflächen soll das Gebäude einen Beitrag zur Verdichtung leisten und gleichzeitig ökonomisch effizient sowie ressourcenschonend betrieben werden. Dies wird mit dem innovativen Entwurfskonzept erreicht, bei dem die Haustechnikinstallationen anstelle von horizontal unter der Geschossdecke neu vertikal in der Fassade geführt werden – womit rund 3 Geschosse mehr und damit fast 20% zusätzliche Geschosssflächen realisiert werden können als mit konventionellen Geschosshöhen.

Der Entwurf verfolgt eine Low-Tech-Strategie mit einem minimalen Technisierungsgrad. Graue Energie wird mit schlanken Geschossdecken optimiert. Vorfabrizierte Holzfassaden minimieren den CO2-Ausstoss und können später wieder in den Stoffkreislauf zurückgeführt werden. 

Projektdetails

Bauherrschaft
Geistlich Immobilia AG
Ort
Schlieren
Internes Team
Christoph Kellenberger, Andreas Derrer, Raf Dauwe, Mikel Martinez Mugica, Tim Hildenbrand-Severo
Externes Team
Anex Ingenieure AG (HLKSE, Bauphysik), WaltGalmarini AG (Statik), Lüchinger Meyer Partner AG (Fassadeningenieur)
Jahr
2022
Typologie
Disziplin
Status