Ihr Browser ist veraltet. Bitte aktualiseren Sie auf Edge, Chrome, Firefox.

Wüest Partner Office, Zurich

In a two-part process, OOS won a study competition for the new offices of Wüest Partner against seven competitors with its concept “knowledge exchange”.

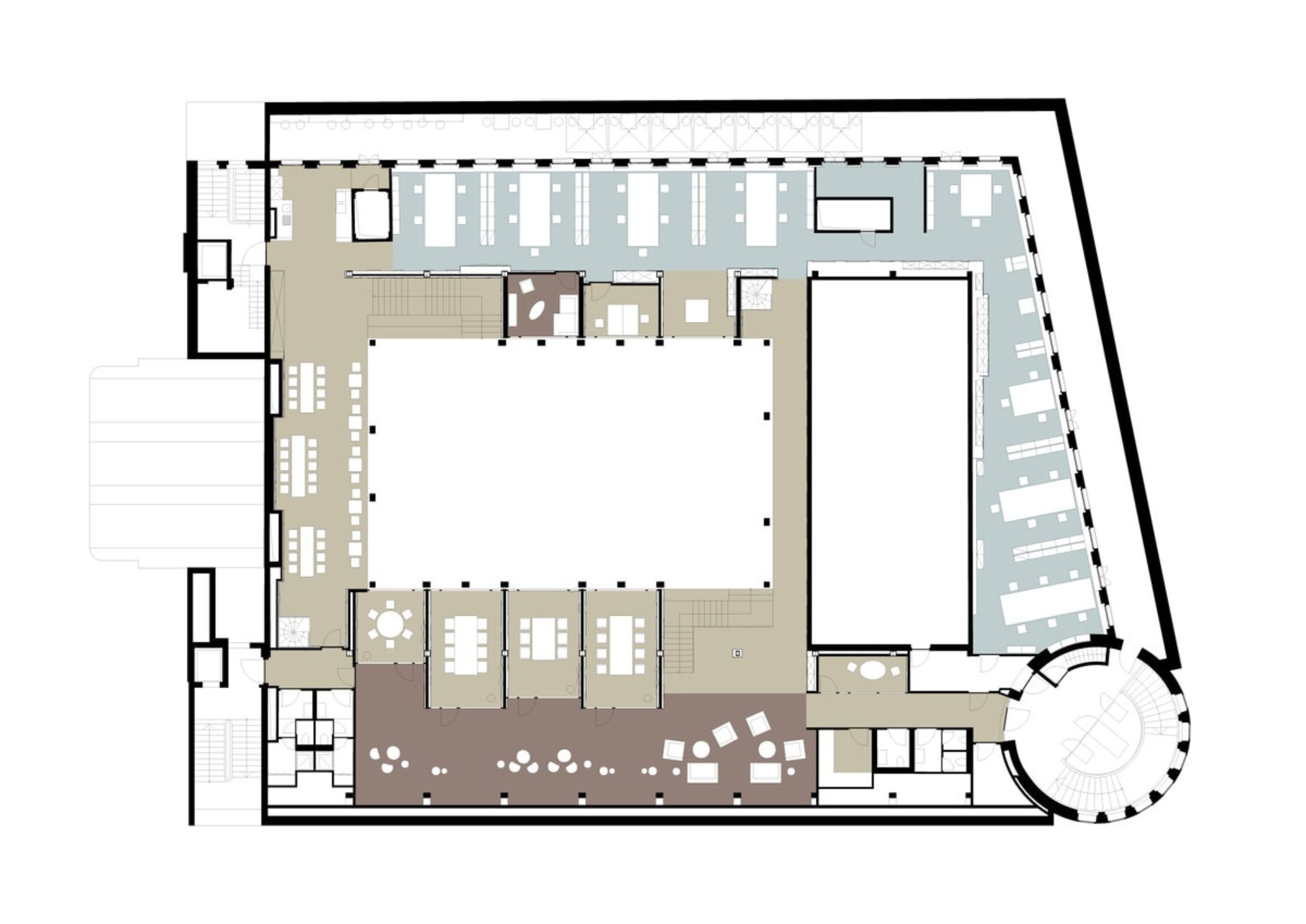
In the historic offices of the old stock exchange on Paradeplatz, where shares were once traded and then drinks passed across the bar, a new tailored work environment for one of Switzerland’s leading real estate consulting firms is being created. The new office setting offers a flexible layout with up to 150 workplaces in contemporary surroundings.

The main usage areas make possible specific work operations and promote communications flow and knowledge transfer within the company besides providing elegant customer zones. The spaces are divided into three ring-shaped zones (“develop”, “gather and distribute” and “exchange”). Along the outside façade ring, concentrated work takes place in spacious offices.

Spatial offer supports the exchange of knowledge

All permanent workplaces have ideal conditions for work. In the middle, three-part layer, one can withdraw or work in smaller groups. The central, two-story hall with a glass roof is the heart of the office environment and invites workers to linger and exchange ideas with colleagues.

Project Details

Client
Wüest Partner AG
Location
Zurich
Internal Team
Christoph Kellenberger, Jan Gloeckner, Cornelia Kuonen, Gonçalo A. Manteigas, Joana Azevedo, Anna Pàl
External Team
BAKUS Bauphysik&Akustik GmbH (acoustics), Righetti Partner Group (management of works), Gruner AG (fire protection), Mosimann & Partner AG (electrical planning), Amstein + Walthert AG (domestic engineering), Sommerlatte & Sommerlatte (lighting planning), HKG Consulting AG (safety), Suisseplan Ing. AG (statics), Damaris Betancourt (photography)
Year
2013
Typology
Discipline
Status