Ihr Browser ist veraltet. Bitte aktualiseren Sie auf Edge, Chrome, Firefox.

Nest Margarethenstrasse, Basel

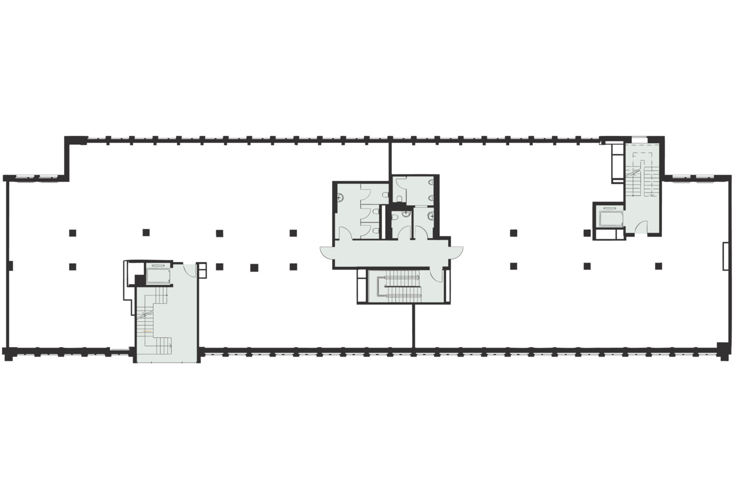
As part of a repositioning project for the Nest Sammelstiftung, existing office space in the shell of the building was converted for initial letting. The office and commercial space is suitable for companies of different sizes, offers innovative forms of work and supports the community building.

In Basel, another project was realised for the ecologically ethical Nest Sammelstiftung pension fund: The extension of three floors in Margarethenstrasse. A total of 1,465 m2 of office space and 400 m2 of commercial space on the ground floor were created.

In order to make the space attractive, not only was the interior design developed, but the marketing strategy was also optimised in close cooperation with the client and Inspire 529. Prior to planning, it was defined who the future users would be and what their needs would be. The values of the new tenants and the use of the ground floor should be in line with the principles of the foundation.

The designed interior architecture follows the plug-and-play principle.

The concept offers considerable advantages to future users. By dividing the office space into smaller units, a broader tenant structure is aimed for, with multi-year leases strengthening the sense of community. The creation of an additional community zone promotes collaboration and maximises space utilisation.

The building from the 1960s presented a structural challenge. With the exception of the office expansion, the building was completely refurbished and partially converted into flats. With the new interior design, a spacious and pleasant working environment was created, which cleverly exploits the ceiling height.

Project Details

Client
Nest Sammelstiftung
Location
Basel
Internal Team
Gonçalo Manteigas, Marion Höller, Kate Gannon
External Team
Raguth Baumanagement GmbH (construction lead), Laterza Graf Baupartner AG (construction management), HKG Consulting AG (electrical engineer), Concept-G AG (HVAC), Daniel Werder (photography)
Year
2024
Typology
Status