Bruker Headquarter, Fällanden
Cutting-edge technology indoors and out. Bruker, one of the world’s leading metrology companies, has commissioned OOS to build a prestigious company headquarters.
Cutting-edge technology indoors and out. Bruker, one of the world’s leading metrology companies, has commissioned OOS to build a prestigious company headquarters.
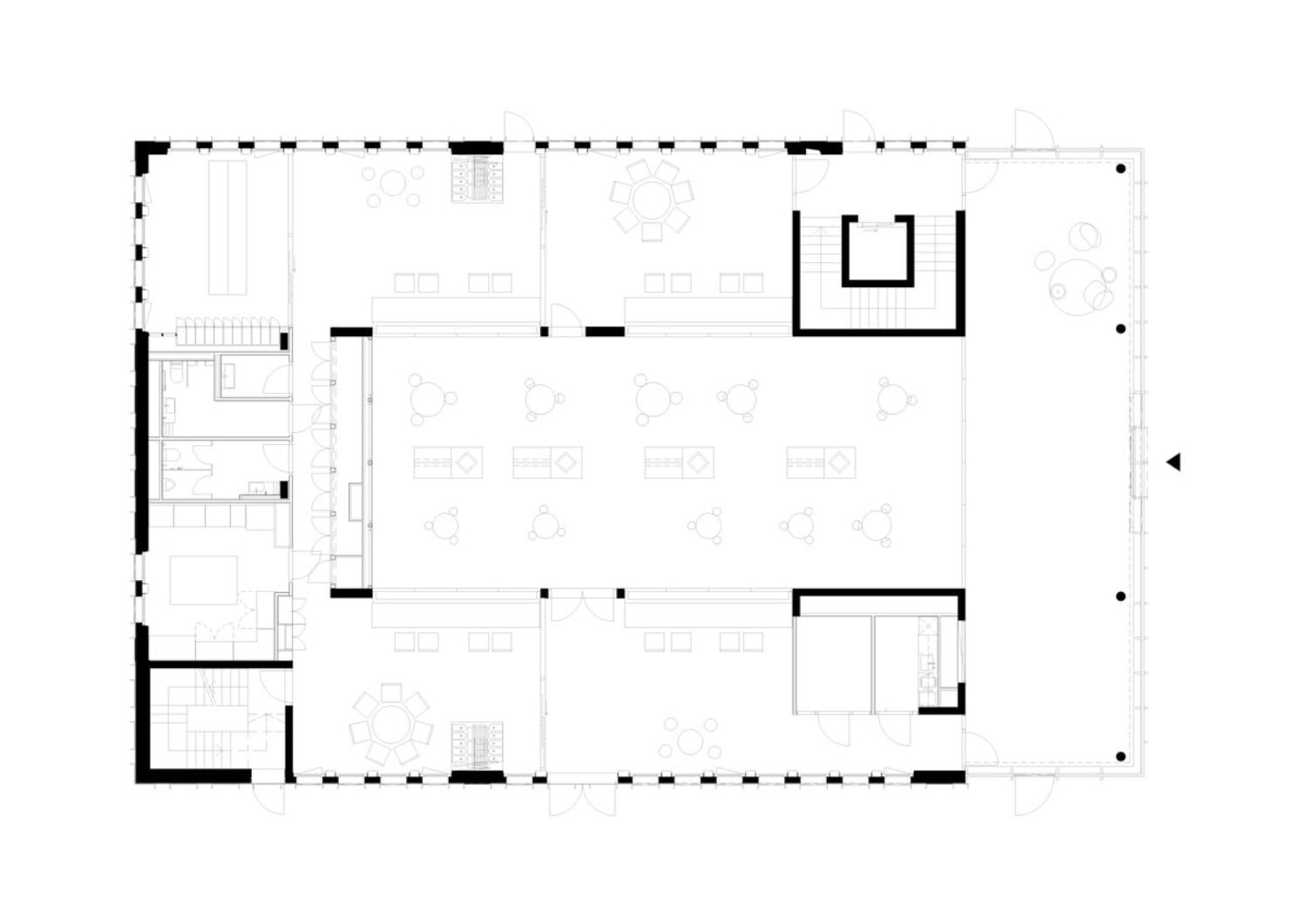
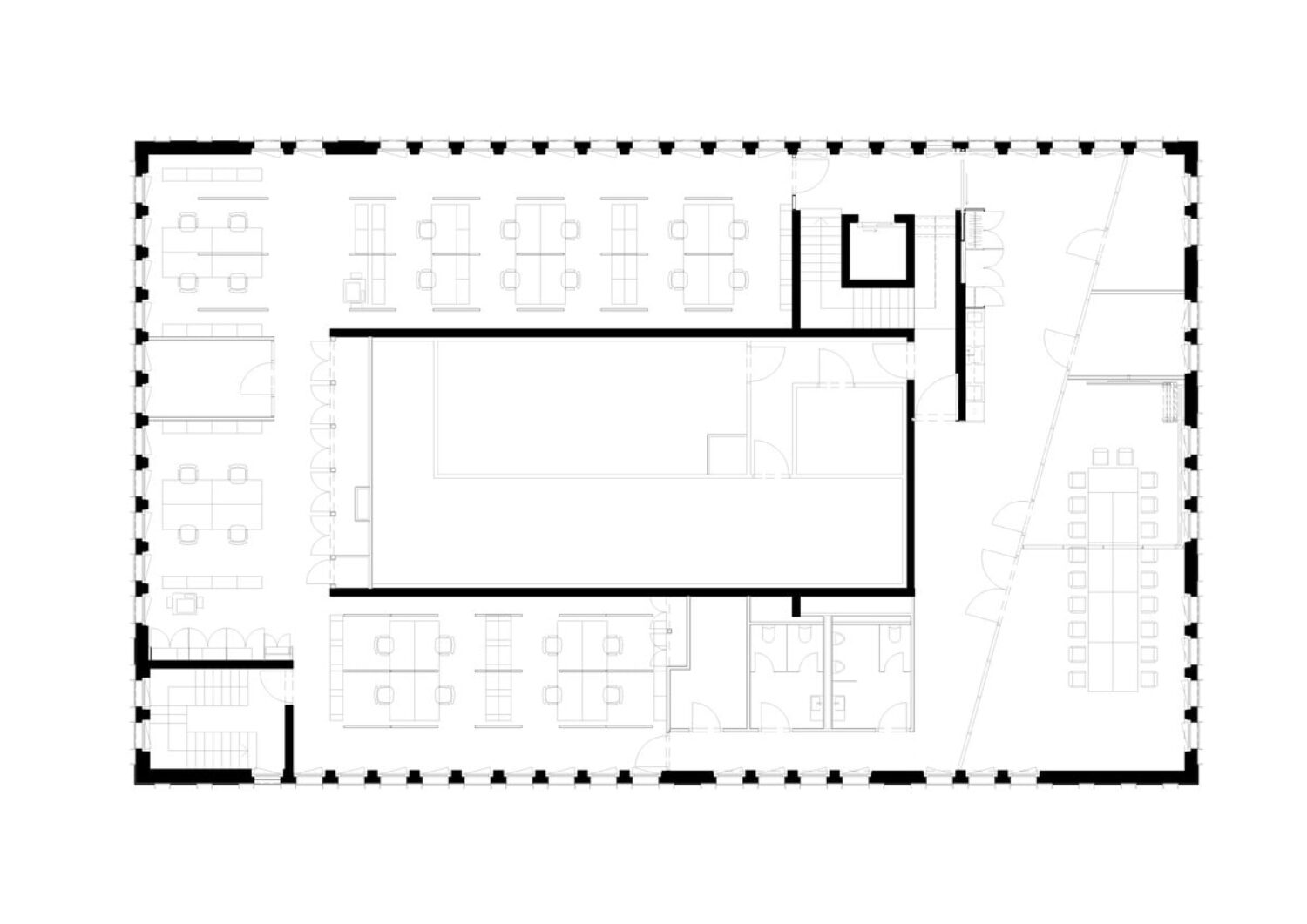
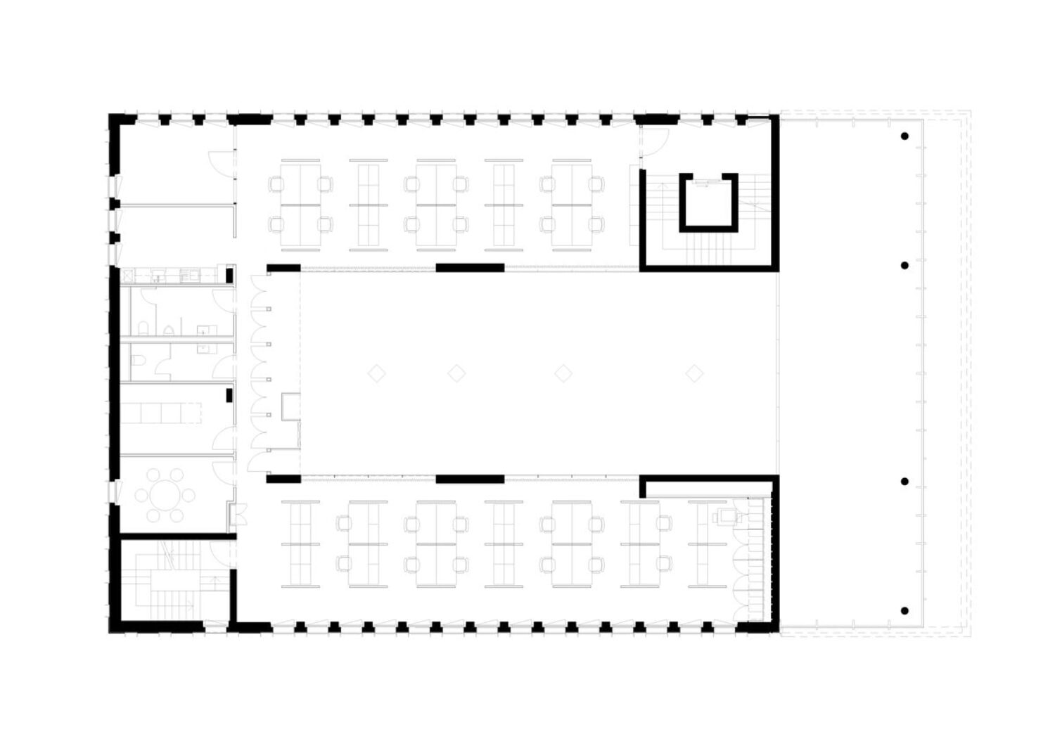
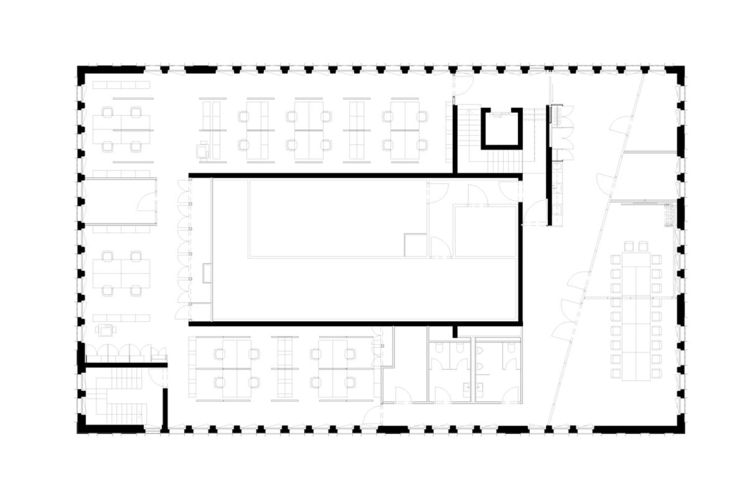
OOS had one and a half years to complete the technically demanding building ready for occupancy. The façade and interiors were to radiate the company’s innovative strength and quality standards and have a representative effect.
Highest quality and innovative construction
A precisely drawn profile in anodised aluminium was chosen for the façade. The vertical alignment of the pilaster strips supports the representative appearance of the building without making it look cumbersome.
Project Details
Client
Bruker BioSpin AG
Location
Fällanden
Internal Team
Andreas Derrer, Anna Pàl, Christoph Kellenberger, Karolina Konecka
External Team
Drees & Sommer Advanced Building Technologies GmbH (civil engineer), Drees & Sommer Schweiz GmbH (construction management), Drees & Sommer Advanced Building Technologies GmbH (building physics), HEFTI.HESS.MARTIGNONI St.Gallen AG (electrical planning), Beag Engineering AG (building services), Dominique Marc Wehrli (photography)
Year
2016
Discipline
Task
Status
Similar Projects
My Money Park, Zurich
Office, 2012
For the start-up My Money Park OOS has developed an adaptable design concept with a long-term focus that has already been implemented in the first Zurich branch.
The young financial advisory firm rethinks the advisory approach and puts clients at the centre of its considerations and objectives. OOS has translated the company’s values and positioning into a spatial environment that directly supports the new client advisory process.
In the entrance area, the client is guided to a pitch table where he or she can find out about investment opportunities. The personal advisory appointments take place in one of the eight “tree houses”.
The tables specially designed for MMP do not replicate the classic front-to-front counselling situation, but rather place counsellor and client in a partnership conversation at eye level with each other.
The cabins are covered with tree structures that create atmosphere and provide the necessary privacy with the curtain panels. The acoustic tarpaulins and carpets in the booths form a space within a space and a different acoustic situation; subdued, trusting, discreet. Further international locations are already being considered.
More about MoneyPark
MyMoneyPark Zurich Christoph Kellenberger, Gonçalo A. Manteigas, Nicole McIntosh GCG (management of works), Claudia Luperto (photography)
Wüest Partner Office, Zurich
Office, 2013
In a two-part process, OOS won a study competition for the new offices of Wüest Partner against seven competitors with its concept “knowledge exchange”.
In the historic offices of the old stock exchange on Paradeplatz, where shares were once traded and then drinks passed across the bar, a new tailored work environment for one of Switzerland’s leading real estate consulting firms is being created. The new office setting offers a flexible layout with up to 150 workplaces in contemporary surroundings.
The main usage areas make possible specific work operations and promote communications flow and knowledge transfer within the company besides providing elegant customer zones. The spaces are divided into three ring-shaped zones (“develop”, “gather and distribute” and “exchange”). Along the outside façade ring, concentrated work takes place in spacious offices.
All permanent workplaces have ideal conditions for work. In the middle, three-part layer, one can withdraw or work in smaller groups. The central, two-story hall with a glass roof is the heart of the office environment and invites workers to linger and exchange ideas with colleagues.
More about Wüest Partner
Wüest Partner AG Zurich Christoph Kellenberger, Jan Gloeckner, Cornelia Kuonen, Gonçalo A. Manteigas, Joana Azevedo, Anna Pàl BAKUS Bauphysik&Akustik GmbH (acoustics), Righetti Partner Group (management of works), Gruner AG (fire protection), Mosimann & Partner AG (electrical planning), Amstein + Walthert AG (domestic engineering), Sommerlatte & Sommerlatte (lighting planning), HKG Consulting AG (safety), Suisseplan Ing. AG (statics), Damaris Betancourt (photography)
Novartis Cube Extension, Stein-Säckingen
Industry, 2013
Based on the functional needs of customers and users for a technical building with an office section, the architects generated a spatial atmosphere that derives from the relationship between technology and nature.
The usable floor space on the north side of the existing building (Cube I) was enlarged five times to a surface area of 10,500 m2. Due to the setting of the two units of the building, a new smaller space was created, which has had a positive effect, enhancing the overall spatial situation.
The artificial hill at the end of the building provides an attractive finishing touch, leading to a high-quality workplace in marked contrast to the surroundings dominated by industry.
The expansion was already under consideration during the development of Cube I so that it could be implemented without an additional development plan. The separation between the main building and the adjacent powerhouse strengthens its character as a campus, given further emphasis by the different colors of the facades. The logic and the sensory appeal expressed in Cube II are predicated on the analogy to a machine.
The cooling of the central spaces takes place through the facade. The air is drawn in through the facade on one side, and the heated air is released on the opposite side. In order to lend equal consideration to the technical and design specifications, the metal facade elements (metal panels) were folded. This ensures the stability and planarity of the aluminum elements held together at just a few points, even given the high percentage area of the perforations.
Novartis Pharma Schweiz AG Stein-Säckingen Andreas Derrer, Anna Pàl, Wouter Homs, Patricia Pomés Jiménez, Christoph Kellenberger, Christiane Agreiter, Tamara Prader Schmidt + Partner Bauingenieure AG (civil engineer), Zwimpfer Partner Architekten (executing architect and general planer), HKG Consulting (safety, fire protection), Sytec AG (electrical planning), J. Koch HTL (domestic engineering), Sanplan Ingenieure AG (sanitation), Damaris Betancourt (photography)
Pöyry Business Group Office, Zurich
Office, 2011
For the third time, Pöyry, one of the world’s leading engineering and consulting companies, has commissioned OOS to design a new office environment. In the Swiss headquarters, an area of 700m2 was converted on the seventh floor.
The goal was to create an inspiring working environment that represented the company’s identity. The corporate architecture elements developed by OOS were taken up again in the design concept and adapted to the new situation. Design elements such as the CI colour palette, the arrangement of the rooms, the lighting concept and the glass subdivisions were adopted and reinterpreted.
In order to present the five Pöyry business units represented on the floor, OOS developed a 45m long collage, which fits into the existing corporate design as a new, identity-forming element and highlights the company’s values. The pixelated elements of the collage were designed using Parametric Design Tools, printed on foil and applied to the wooden panels. The new design element adorns the walls along the entire floor length and connects the five business areas.
Pöyry Infra AG Zurich Christoph Kellenberger, Gonçalo A. Manteigas, Tamara Prader Goran Potkonjak (photography)